建設現場・工場に
朗報!!
素敵な空間をいつでもどこでも
簡単にレンタル
簡単にレンタル
選ばれる理由
REASON
サントレラだからできる
4つのメリット

-
建物を建てられない場所でもOK
トレーラーハウスは法的には車両となるので、市街化調整区域等でも設置が可能です。
※自治体の承認が必要になる場合もあります -
固定資産税等がかかりません
トレーラーハウスは車両扱いとなるため、固定資産税や不動産取得税がかかりません
-
いつでもどこでも移動可
グループ会社が運ぶので、安心安全。スピーディーにご要望にお応えします。
※https://www.fujieunyu.co.jp/(藤江運輸) -
オールインクルーシブ
家具・家電や事務用品もお客様の要望に合わせて自由にカスタマイズ可能です。
ご利用例
PLAN
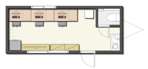
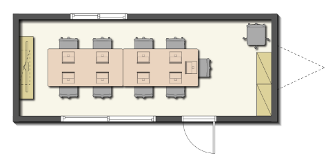
オフィス/会議室として
オフィスタイプ
会議室タイプ
休憩室として
休憩室タイプ
宿泊用として
ホテルタイプ
パウダールームとして
パウダールームタイプ
会社概要
COMPANY
| 会社名 | 三徳アスリード株式会社 |
|---|---|
| 所在地 |
<本社>
〒532-0033 大阪府大阪市淀川区新高4-4-10 TEL:06-7174-8822
<東京営業所>
〒141-0031 東京都品川区西五反田1-11-1 アイオス五反田駅前ビル4F TEL:03-3493-7626
<名古屋営業所>
〒464-0850 愛知県名古屋市千種区今池5-1-5 名古屋センタープラザビル6F TEL:052-745-8701
<福岡営業所>
〒810-0001 福岡県福岡市中央区天神4-8-2 天神ビルプラス6F |
| 代表者 | 代表取締役社長 日下部 太郎 |
| 設立 | 平成30年5月1日 |
| 資本金 | 50,000,000円 |
| 売上高 | 117億円(2024年6月期) |
| 事業内容 | アスファルト・建設資材・燃料油・潤滑油の販売。舗装工事(民間)の受注 |
| 資格 | 古物商許可 第302172517464号 |